Wybór odpowiedniego zaworu kulowego 1 cal do instalacji centralnego ogrzewania to kluczowa decyzja, która wpływa na bezpieczeństwo, niezawodność i efektywność całego systemu grzewczego. Ten artykuł pomoże Ci zrozumieć najważniejsze parametry techniczne, dostępne opcje oraz najczęstsze błędy, abyś mógł dokonać świadomego wyboru i cieszyć się bezproblemową eksploatacją na lata.
Wybór zaworu kulowego 1 cal do CO wymaga analizy materiału, ciśnienia i certyfikatów dla trwałości instalacji.
- Mosiądz niklowany to standard, stal nierdzewna oferuje wyższą odporność na korozję.
- Ciśnienie nominalne (PN16-PN30) i temperatura pracy (do 120°C) są kluczowe dla bezpieczeństwa.
- Zawór z dławikiem zwiększa żywotność i szczelność, szczególnie w CO.
- Dźwignia ułatwia operowanie, motylek sprawdza się w ciasnych miejscach.
- Atest Higieniczny PZH i normy EN świadczą o jakości i bezpieczeństwie produktu.
- Unikaj używania zaworu kulowego do regulacji przepływu, służy on do pełnego otwarcia/zamknięcia.

Dlaczego dobór właściwego zaworu 1 cal do CO to decyzja, której nie można lekceważyć?
Jako doświadczony instalator, wielokrotnie widziałem, jak pozornie drobna decyzja o wyborze zaworu potrafiła zaważyć na całej instalacji. Zawór kulowy 1 cal do centralnego ogrzewania to nie tylko element odcinający, ale krytyczny komponent, który ma bezpośredni wpływ na bezpieczeństwo i niezawodność całego systemu. Lekceważenie jego doboru może prowadzić do szeregu nieprzyjemnych konsekwencji, począwszy od drobnych, irytujących nieszczelności i wycieków, które wymagają częstych interwencji, aż po poważne awarie. Wyobraźmy sobie zalanie pomieszczenia gorącą wodą, konieczność kosztownych napraw, a nawet wymiany części instalacji to wszystko są realne scenariusze wynikające z błędnego wyboru lub montażu zaworu.
Dlatego zawsze podkreślam: poświęcenie czasu na analizę i wybór właściwego produktu to inwestycja, która procentuje spokojem ducha, długotrwałą trwałością systemu i brakiem nieprzewidzianych kosztów w przyszłości. Nie warto oszczędzać na elemencie, który pełni tak fundamentalną rolę w sercu każdego domu czy obiektu.

Kluczowe parametry techniczne: Na co zwrócić uwagę przed zakupem zaworu kulowego 1 cal?
Kiedy stajemy przed wyborem zaworu kulowego 1 cal do instalacji CO, musimy zagłębić się w jego specyfikację techniczną. To właśnie te detale decydują o tym, czy dany zawór sprosta warunkom panującym w naszej instalacji i zapewni jej bezawaryjną pracę. Z mojego doświadczenia wynika, że ignorowanie tych parametrów to prosta droga do problemów.
Materiał korpusu: Mosiądz niklowany czy stal nierdzewna kiedy warto dopłacić?
Materiał, z którego wykonany jest korpus zaworu, to jeden z pierwszych i najważniejszych aspektów. Najczęściej spotykamy się z zaworami z mosiądzu, często niklowanego lub chromowanego. Jest to rozwiązanie popularne i ekonomiczne, oferujące dobrą odporność na korozję w standardowych warunkach instalacji CO. Sprawdza się doskonale w większości domowych zastosowań.
Jednak w bardziej wymagających środowiskach, gdzie medium grzewcze może być agresywne lub gdy zależy nam na maksymalnej trwałości, warto rozważyć zawory ze stali nierdzewnej (kwasoodpornej). Stal nierdzewna charakteryzuje się znacznie wyższą odpornością na korozję i agresywne media chemiczne. Choć jest to materiał droższy, jego wytrzymałość i odporność na trudne warunki pracy mogą okazać się kluczowe, szczególnie w instalacjach przemysłowych lub tam, gdzie woda w obiegu ma specyficzne parametry.
Ciśnienie (PN) i temperatura pracy: Jak odczytać oznaczenia i dopasować zawór do swojej instalacji CO?
Dwa kolejne, niezwykle ważne parametry to ciśnienie nominalne (PN) i maksymalna temperatura robocza. Ciśnienie nominalne określa maksymalne ciśnienie, przy którym zawór może bezpiecznie pracować. Dla domowych instalacji CO zazwyczaj wystarczające są zawory z oznaczeniem PN16, PN25 lub PN30. Zawsze należy upewnić się, że wybrany zawór jest przystosowany do maksymalnego ciśnienia, jakie może wystąpić w systemie.
Równie istotna jest maksymalna temperatura robocza. Instalacje centralnego ogrzewania pracują z gorącą wodą, często osiągającą temperaturę do 120°C. Zawór musi być na to przygotowany. Warto też zwrócić uwagę na materiał uszczelnienia kuli najczęściej jest to teflon (PTFE), który zapewnia wysoką szczelność i trwałość w wysokich temperaturach.
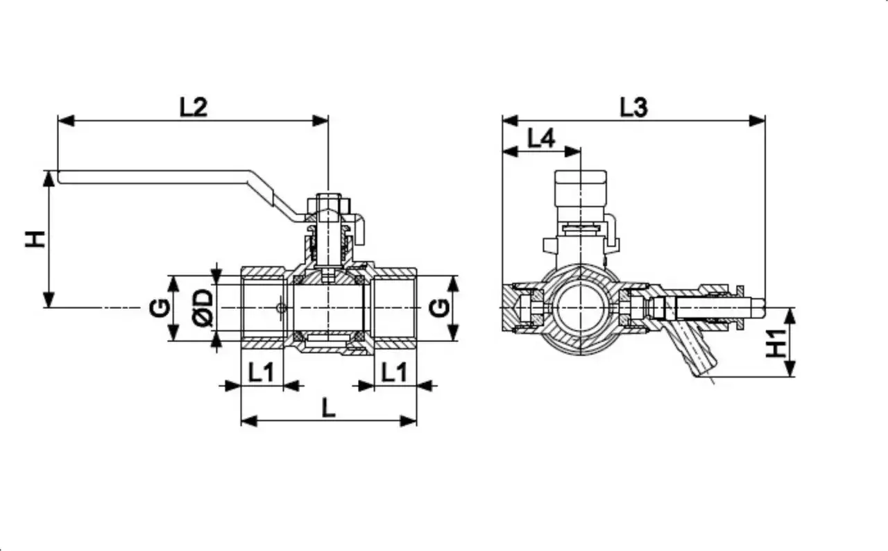
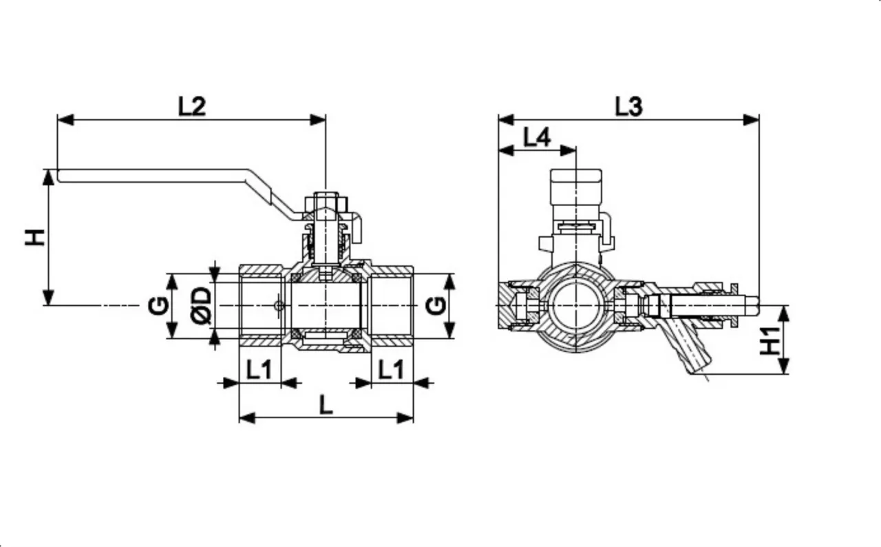
Rodzaj przyłącza: Gwint wewnętrzny (WW), zewnętrzny (GZ) czy praktyczny śrubunek co wybrać?
Rodzaj przyłącza zaworu musi być kompatybilny z resztą instalacji. Najpopularniejsze są zawory z gwintami wewnętrznymi (WW). Dostępne są również wersje z gwintem zewnętrznym i wewnętrznym (nyplowe, ZW), które mogą być przydatne w specyficznych konfiguracjach. Jednak z mojego punktu widzenia, najbardziej praktycznym rozwiązaniem, zwłaszcza w instalacjach CO, jest zawór ze śrubunkiem. Jego główną zaletą jest możliwość łatwego demontażu części instalacji (np. grzejnika czy pompy) bez konieczności całkowitego opróżniania całego systemu. To ogromna oszczędność czasu i wygoda podczas serwisowania czy wymiany komponentów.
Zawór kulowy z dławikiem czy bez? Wyjaśniamy, dlaczego ten mały element ma ogromne znaczenie.
Wybór zaworu kulowego często sprowadza się do detali, które na pierwszy rzut oka mogą wydawać się nieistotne. Jednym z takich elementów jest dławik. Z mojego doświadczenia wynika, że to właśnie on może znacząco wpłynąć na długowieczność i bezproblemową pracę zaworu, szczególnie w wymagających warunkach instalacji grzewczej.
Czym jest dławik i jak wpływa na żywotność zaworu w instalacji grzewczej?
Dławik to nic innego jak dodatkowa nakrętka umieszczona pod rączką zaworu, która dociska uszczelnienie trzpienia. Jego główną funkcją jest kompensacja luzów i doszczelnianie trzpienia zaworu. W trakcie długotrwałej eksploatacji, zwłaszcza w instalacjach grzewczych, gdzie występują cykliczne zmiany temperatury i ciśnienia, uszczelnienia mogą ulec zużyciu lub skurczeniu. Dławik pozwala na ręczne dociśnięcie uszczelnienia, co znacząco wydłuża żywotność zaworu i zapobiega powstawaniu nieszczelności wokół trzpienia. To proste, ale niezwykle skuteczne rozwiązanie, które minimalizuje ryzyko wycieków.
Kiedy zawór z dławikiem jest absolutną koniecznością, a kiedy można z niego zrezygnować?
W branży instalacyjnej panuje zgodne przekonanie, że zawór z dławikiem jest rozwiązaniem bardziej "żywotnym" i jest preferowany w instalacjach CO, gdzie niezawodność jest kluczowa. Właściwie, w przypadku centralnego ogrzewania, zawsze rekomenduję wybór zaworu z dławikiem. Dlaczego? Ponieważ to właśnie w tych systemach zawory są często narażone na intensywną pracę i zmienne warunki. Możliwość doszczelnienia zaworu bez konieczności jego wymiany to ogromna zaleta. Można z niego zrezygnować jedynie w mniej wymagających zastosowaniach, gdzie zawór jest sporadycznie używany i nie jest narażony na wysokie temperatury czy ciśnienia, ale w kontekście CO, uważam to za błąd.
Dźwignia czy motylek? Porównanie uchwytów pod kątem wygody i miejsca montażu.
Wybór odpowiedniego uchwytu zaworu kulowego to kwestia, która może wydawać się marginalna, ale ma realny wpływ na komfort użytkowania i możliwości montażowe. Zawsze doradzam klientom, aby zastanowili się nad tym aspektem, zanim podejmą ostateczną decyzję.
Zalety długiej dźwigni: mniejsza siła potrzebna do zamknięcia przepływu.
Zawory z długą dźwignią są niezwykle popularne i mają ku temu dobre powody. Ich główną zaletą jest ergonomia długa dźwignia działa jak ramię, co sprawia, że do otwarcia lub zamknięcia zaworu potrzebna jest znacznie mniejsza siła. To szczególnie ważne w przypadku zaworów, które są rzadko używane i mogą stawiać większy opór, lub dla osób o mniejszej sile fizycznej. Długa dźwignia zapewnia pewny chwyt i łatwość operowania, co jest komfortowe w codziennym użytkowaniu oraz podczas prac serwisowych.
Kiedy kompaktowy motylek staje się jedynym słusznym rozwiązaniem?
Z kolei motylek, czyli krótki, kompaktowy uchwyt, zyskuje przewagę w sytuacjach, gdy przestrzeń montażowa jest mocno ograniczona. W ciasnych wnękach, za rurami czy w miejscach, gdzie długa dźwignia po prostu by się nie zmieściła lub utrudniałaby dostęp do innych elementów instalacji, motylek staje się jedynym słusznym rozwiązaniem. Mimo że wymaga nieco więcej siły do operowania, jego kompaktowe rozmiary są nieocenione tam, gdzie każdy centymetr ma znaczenie. Zawsze należy ocenić miejsce montażu przed podjęciem decyzji o rodzaju uchwytu.

Certyfikaty i atesty Twoja gwarancja bezpieczeństwa i zgodności z normami.
Kupując zawór kulowy do instalacji CO, nie wystarczy polegać wyłącznie na deklaracjach producenta. Jakość i bezpieczeństwo produktu powinny być potwierdzone odpowiednimi dokumentami. Zawsze zwracam uwagę na certyfikaty i atesty, ponieważ są one moją gwarancją, że produkt spełnia określone normy i jest bezpieczny w użytkowaniu.
Dlaczego warto szukać znaku budowlanego "B" i Atestu Higienicznego PZH?
W Polsce, szczególnie ważne jest zwrócenie uwagi na Atest Higieniczny PZH. Jest on absolutnie kluczowy, jeśli instalacja CO jest w jakikolwiek sposób połączona z obiegiem wody pitnej lub istnieje ryzyko jej kontaktu z wodą przeznaczoną do spożycia. Atest PZH potwierdza, że produkt nie wpływa negatywnie na jakość wody i jest bezpieczny dla zdrowia. Równie istotny jest znak budowlany "B" (lub inne równoważne oznaczenia, np. CE dla produktów unijnych). Ten znak potwierdza zgodność produktu z polskimi normami budowlanymi i jego dopuszczenie do obrotu na terenie kraju. Brak tych oznaczeń powinien zawsze wzbudzać nasze wątpliwości.
Jakie inne normy europejskie świadczą o wysokiej jakości zaworu?
Oprócz krajowych atestów, warto szukać także innych certyfikatów i zgodności z normami europejskimi (EN). Są one dowodem wysokiej jakości, bezpieczeństwa i niezawodności produktu, potwierdzonym przez niezależne instytucje. Normy takie jak EN 13828 (dla zaworów kulowych do wody pitnej i instalacji grzewczych) czy EN 331 (dla zaworów kulowych do gazu) świadczą o tym, że produkt został przebadany i spełnia rygorystyczne wymagania. Obecność takich oznaczeń na opakowaniu lub w dokumentacji technicznej zaworu to dla mnie zawsze sygnał, że mam do czynienia z produktem godnym zaufania.
Najczęstsze błędy przy montażu i eksploatacji zaworu kulowego jak ich uniknąć?
Nawet najlepszy zawór kulowy może sprawiać problemy, jeśli zostanie źle zamontowany lub niewłaściwie eksploatowany. Moje wieloletnie doświadczenie w branży nauczyło mnie, że unikanie kilku podstawowych błędów może znacząco przedłużyć żywotność instalacji i zaoszczędzić wiele nerwów. Przyjrzyjmy się najczęstszym z nich.
Problem uszczelnienia: Taśma teflonowa, pakuły czy nowoczesne nici co i jak stosować?
Jednym z najczęstszych problemów jest brak odpowiedniego uszczelnienia gwintów. Niewłaściwie uszczelnione połączenie to prosta droga do wycieków. Do uszczelniania gwintów tradycyjnie używa się pakuł konopnych z pastą uszczelniającą. Ważne jest, aby pakuły nawinąć równomiernie i zgodnie z kierunkiem dokręcania gwintu, a następnie pokryć je pastą. Alternatywą jest taśma teflonowa, którą również należy nawijać zgodnie z kierunkiem gwintu, pamiętając o odpowiedniej liczbie zwojów (zazwyczaj 8-12, w zależności od grubości taśmy i gwintu). Coraz większą popularność zyskują nowoczesne nici uszczelniające, które są szybkie w aplikacji i zapewniają pewne uszczelnienie. Niezależnie od wybranej metody, kluczem jest staranność i przestrzeganie zaleceń producenta danego materiału uszczelniającego.
Zbyt duża siła przy dokręcaniu jak nie uszkodzić korpusu zaworu?
Innym powszechnym błędem jest używanie zbyt dużej siły podczas dokręcania zaworów. To może prowadzić do uszkodzenia korpusu zaworu (np. pęknięcia) lub zerwania gwintów, co w konsekwencji oznacza konieczność wymiany elementu. Zawory kulowe są precyzyjnymi elementami i nie wymagają nadmiernego dokręcania. Zazwyczaj wystarczy dokręcić je kluczem do momentu wyczucia oporu, a następnie delikatnie dociągnąć. Zawsze używaj kluczy o odpowiednim rozmiarze i unikaj przedłużek, które zwiększają ryzyko uszkodzenia.
Kierunek przepływu czy w przypadku zaworu kulowego zawsze jest obojętny?
Większość zaworów kulowych jest skonstruowana tak, że kierunek przepływu jest obojętny, co oznacza, że mogą być montowane w dowolnej pozycji względem przepływu medium. Jednakże, zawsze należy sprawdzić, czy na korpusie zaworu nie ma oznaczonego kierunku przepływu (np. strzałki). Jeśli takie oznaczenie istnieje, należy się do niego bezwzględnie stosować. Ignorowanie tego może w niektórych, specyficznych konstrukcjach zaworów prowadzić do nieprawidłowej pracy lub szybszego zużycia.
Dlaczego zawór kulowy nie służy do regulacji przepływu i czym to grozi?
To jest fundamentalna zasada, którą często muszę przypominać: zawory kulowe służą do pełnego otwierania lub zamykania przepływu. Nie są przeznaczone do jego regulacji! Używanie zaworu kulowego w pozycji częściowo otwartej, w celu regulacji przepływu, jest poważnym błędem. Prowadzi to do erozji kuli i uszczelnień przez przepływające medium, co skraca żywotność zaworu i bardzo szybko prowadzi do nieszczelności. Do regulacji przepływu należy stosować zawory regulacyjne, takie jak zawory grzybkowe czy zasuwy, które są do tego celu zaprojektowane.
Przegląd renomowanych producentów na polskim rynku komu zaufali instalatorzy?
Wybór producenta to często kwestia zaufania i doświadczenia. Na polskim rynku dostępnych jest wielu dostawców zaworów kulowych, ale jako instalator, zawsze polegam na sprawdzonych markach, które gwarantują jakość i niezawodność. To właśnie one cieszą się największym zaufaniem w branży.
Polscy liderzy branży: Valvex, KFA Armatura i inni charakterystyka oferty.
Wśród polskich producentów, którzy od lat dostarczają solidne rozwiązania, na czoło wysuwają się takie firmy jak KFA Armatura, Valvex i Diamond. Z moich obserwacji wynika, że marka Valvex jest jedną z najczęściej wybieranych przez profesjonalnych instalatorów w Polsce, co świadczy o jej ugruntowanej pozycji i zaufaniu, jakim się cieszy. Producenci ci wyróżniają się nie tylko jakością swoich produktów, ale także ich dostępnością i często innowacyjnością. Oferują szeroki asortyment zaworów kulowych, które spełniają polskie i europejskie normy, co jest kluczowe dla bezpieczeństwa i trwałości instalacji.
Międzynarodowe marki dostępne w Polsce co warto o nich wiedzieć?
Oprócz rodzimych producentów, na polskim rynku dostępne są również produkty wielu międzynarodowych marek. Są to często firmy o globalnym zasięgu, które również oferują wysokiej jakości zawory. Wybierając produkty międzynarodowych gigantów, warto zwrócić uwagę na ich reputację, dostępność serwisu oraz części zamiennych w Polsce. Niezwykle ważne jest również upewnienie się, że ich produkty są zgodne z europejskimi normami (EN) i posiadają wymagane atesty do użytku w naszych warunkach. Czasem droższy produkt renomowanej marki zagranicznej może okazać się lepszą inwestycją w długiej perspektywie.
Checklista w 3 krokach: Jak wybrać idealny zawór kulowy 1 cal do Twojej instalacji CO?
Podsumowując, wybór odpowiedniego zaworu kulowego 1 cal do instalacji centralnego ogrzewania nie musi być skomplikowany, jeśli podejdziemy do niego metodycznie. Przygotowałem dla Ciebie prostą checklistę w trzech krokach, która pomoże Ci podjąć świadomą decyzję.
Krok 1: Określ warunki pracy (temperatura, ciśnienie, medium).
Instrukcja: Rozpocznij od analizy środowiska pracy zaworu. Określ maksymalną temperaturę i ciśnienie panujące w Twojej instalacji CO oraz rodzaj medium grzewczego. Czy jest to czysta woda, czy może zawiera dodatki antykorozyjne? To podstawa do wyboru odpowiedniego zaworu, który sprosta tym warunkom bez ryzyka awarii.
Krok 2: Zdecyduj o kluczowych cechach (materiał, dławik, uchwyt, przyłącze).
Instrukcja: Na podstawie określonych warunków pracy i Twoich preferencji, wybierz materiał korpusu (mosiądz niklowany dla standardowych zastosowań, stal nierdzewna dla trudniejszych warunków). Zdecyduj o obecności dławika w CO zawsze polecam zawory z dławikiem dla większej niezawodności. Wybierz typ uchwytu (długa dźwignia dla wygody, motylek dla ograniczonej przestrzeni) oraz odpowiedni rodzaj przyłącza (WW, ZW, a najlepiej praktyczny śrubunek).
Przeczytaj również: Jak podłączyć wentylator do światła? Schematy, bezpieczeństwo, porady
Krok 3: Sprawdź certyfikaty i wybierz zaufanego producenta.
Instrukcja: Zawsze weryfikuj posiadane przez zawór certyfikaty, takie jak Atest Higieniczny PZH (jeśli instalacja ma kontakt z wodą pitną) oraz zgodność z normami europejskimi (EN). Wybieraj produkty od renomowanych, sprawdzonych producentów, którzy cieszą się zaufaniem instalatorów. To gwarancja jakości, bezpieczeństwa i długiej, bezproblemowej eksploatacji Twojej instalacji CO.
