Ten artykuł jest praktycznym przewodnikiem, który pomoże Ci zrozumieć i prawidłowo interpretować wymiary rur stosowane w instalacjach domowych i przemysłowych. Dowiesz się, jak rozróżniać kluczowe oznaczenia, przeliczać jednostki i unikać kosztownych błędów, co jest niezbędne dla każdego majsterkowicza i instalatora.
Zrozumienie wymiarów rur jest kluczowe dla uniknięcia błędów i zapewnienia kompatybilności instalacji.
- Średnica nominalna (DN) to umowne oznaczenie, a nie fizyczny wymiar rury.
- Średnica zewnętrzna (Dz) jest rzeczywistym, mierzalnym wymiarem, kluczowym przy doborze złączek.
- System calowy w hydraulice nie zawsze odpowiada prostemu przeliczeniu 1 cal = 25,4 mm.
- Grubość ścianki (t) i współczynnik SDR są istotne dla wytrzymałości i ciśnienia rury.
- Do precyzyjnego pomiaru rur najlepiej używać suwmiarki.
- Częstym błędem jest mylenie DN ze średnicą zewnętrzną.

Dlaczego czytanie wymiarów rur jest kluczowe i jak uniknąć kosztownych pomyłek?
W świecie instalacji, zarówno tych domowych, jak i przemysłowych, prawidłowe zrozumienie wymiarów rur to absolutna podstawa. Z mojego doświadczenia wiem, że błędy w tym zakresie są jedną z głównych przyczyn problemów od drobnych nieszczelności, przez poważne awarie, aż po konieczność kosztownych poprawek całej instalacji. Niewłaściwy dobór rur czy złączek może skutkować nie tylko stratą czasu i pieniędzy, ale także zagrożeniem dla bezpieczeństwa. Ten artykuł ma na celu wyposażyć Cię w wiedzę, która pozwoli Ci pewnie poruszać się po świecie rur i ich oznaczeń, a co za tym idzie uniknąć tych wszystkich problemów.
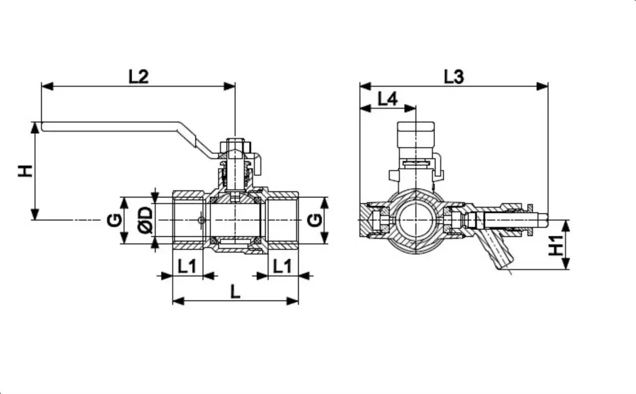
Średnica zewnętrzna (Dz), wewnętrzna (Dw) i nominalna (DN) poznaj trzy kluczowe pojęcia
Zacznijmy od rozróżnienia trzech fundamentalnych pojęć, które często bywają mylone, a ich prawidłowe zrozumienie jest kluczowe. Mamy tu do czynienia ze średnicą nominalną (DN), średnicą zewnętrzną (d lub Dz) oraz średnicą wewnętrzną (Dw). Średnica wewnętrzna (Dw) to po prostu otwór, przez który przepływa medium. Jest ona ważna z punktu widzenia przepustowości, ale rzadziej stosowana w codziennych oznaczeniach.
Największym źródłem nieporozumień jest zazwyczaj średnica nominalna (DN). Pamiętaj, że DN to oznaczenie umowne. Nie jest to rzeczywisty, mierzalny wymiar rury, a jedynie przybliżona wartość średnicy wewnętrznej, wyrażona w milimetrach. Służy ona do klasyfikacji rur i armatury, zapewniając kompatybilność w obrębie danego systemu, zgodnie z normami, takimi jak EN ISO 6708. Oznaczenie DN znajdziesz na rurach stalowych, żeliwnych, z tworzyw sztucznych (PVC, PE, PP) i kompozytowych.
Zupełnie inaczej ma się sprawa ze średnicą zewnętrzną (d lub Dz). To jest właśnie ten rzeczywisty, mierzalny wymiar rury, który jest krytyczny przy doborze wszelkich złączek, obejm, czy przy pracach związanych ze zgrzewaniem lub klejeniem. Dla każdej średnicy nominalnej (DN) przypisana jest konkretna średnica zewnętrzna (d). I tu tkwi sedno częstego błędu: mylenie DN z d. Przykładowo, rura oznaczona jako DN25 wcale nie ma średnicy zewnętrznej 25 mm! Jej rzeczywista średnica zewnętrzna to zazwyczaj 33,7 mm. Podobnie, dla DN32 będzie to 42,4 mm. Zawsze upewnij się, jaki wymiar jest dla Ciebie kluczowy w danym zastosowaniu.
System calowy kontra metryczny dlaczego 1 cal w hydraulice to nie zawsze 25,4 mm?
Kolejnym obszarem, który potrafi sprawić kłopoty, jest koegzystencja systemu calowego i metrycznego, zwłaszcza w kontekście rur stalowych i miedzianych. Intuicyjnie zakładamy, że 1 cal to zawsze 25,4 mm. Niestety, w hydraulice nie jest to takie proste. Wymiary calowe rur są ustandaryzowane historycznie i nie zawsze odpowiadają bezpośredniemu przeliczeniu.
Dla przykładu, rura oznaczona jako 1/2 cala ma średnicę zewnętrzną około 21,3 mm, a nie 12,7 mm (czyli 0,5 * 25,4 mm). Podobnie, rura 3/4 cala to w rzeczywistości około 26,9 mm średnicy zewnętrznej. Dzieje się tak, ponieważ oznaczenia calowe często odnosiły się do przybliżonej średnicy wewnętrznej rury, a nie zewnętrznej. Dlatego zawsze, gdy masz do czynienia z calowymi oznaczeniami, polecam korzystać z tabel przeliczeniowych, które precyzyjnie określają odpowiednie średnice zewnętrzne w milimetrach. To uchroni Cię przed zakupem niewłaściwych złączek.
Grubość ścianki (t) i typoszereg (Schedule) co mówią o wytrzymałości rury?
Poza średnicami, niezwykle ważnym parametrem jest grubość ścianki (t). To ona w dużej mierze decyduje o wytrzymałości rury na ciśnienie i ogólną trwałość. Grubsza ścianka to zazwyczaj większa odporność na wysokie ciśnienie i uszkodzenia mechaniczne, ale też mniejsza średnica wewnętrzna i większa waga. W przypadku rur stalowych często spotkasz się z oznaczeniem typoszeregu "Schedule" (Sch), np. Sch 40, Sch 80. Jest to nic innego jak standard określający grubość ścianki rury dla danej średnicy nominalnej. Im wyższy numer Schedule, tym grubsza ścianka rury. Te parametry są kluczowe przy projektowaniu instalacji wysokociśnieniowych lub tam, gdzie rury są narażone na znaczne obciążenia mechaniczne. Zawsze sprawdzaj grubość ścianki, aby upewnić się, że rura sprosta warunkom, w jakich ma pracować.

Jak czytać oznaczenia na rurach? Praktyczny przewodnik po materiałach
Skoro znamy już podstawowe pojęcia, przejdźmy do praktyki. Różne materiały, z których wykonane są rury, mają swoje specyficzne sposoby oznaczania wymiarów. Zrozumienie tych niuansów jest kluczowe, aby prawidłowo dobrać i połączyć elementy instalacji.
Rury stalowe i miedziane jak interpretować oznaczenia calowe i DN?
Dla rur stalowych, jak już wspomniałem, najczęściej spotkasz się z oznaczeniami calowymi (np. 1/2", 3/4", 1") oraz średnicą nominalną (DN). Ważne jest, aby pamiętać, że istnieją różne normy (np. DIN, ISO, ASTM), które mogą nieznacznie różnić się wymiarami zewnętrznymi dla tej samej średnicy nominalnej. Zawsze warto sprawdzić, według jakiej normy wykonana jest rura, zwłaszcza przy łączeniu elementów od różnych producentów. Kluczowa jest tu również grubość ścianki (t), często określana przez wspomniany już typoszereg "Schedule".
W przypadku rur miedzianych sprawa jest zazwyczaj prostsza. Wymiary podawane są najczęściej jako średnica zewnętrzna w milimetrach. Typowe rozmiary, które znajdziesz w sklepach, to 15 mm, 18 mm, 22 mm, 28 mm itd. To znacznie ułatwia dobór złączek, ponieważ wystarczy zmierzyć średnicę zewnętrzną rury, aby dobrać pasujące elementy.
Rury z tworzyw sztucznych (PEX, PP, PVC) co oznaczają szeregi liczb na ich powierzchni?
Rury wykonane z tworzyw sztucznych, takich jak PEX, PP czy PVC, mają swoje specyficzne oznaczenia, które zazwyczaj są bardzo czytelne. Na ich powierzchni znajdziesz zazwyczaj nadrukowane informacje, które podają średnicę zewnętrzną oraz grubość ścianki w milimetrach. Przykładowo, oznaczenie "25 x 2.3 mm" oznacza rurę o średnicy zewnętrznej 25 mm i grubości ścianki 2.3 mm. Czasami, dla ułatwienia porównania z systemami stalowymi, producenci umieszczają również oznaczenie DN, ale zawsze kluczowe są te rzeczywiste wymiary w milimetrach.
Współczynnik SDR ukryty kod na rurach z tworzyw, który musisz znać
Dla rur z tworzyw sztucznych, oprócz średnicy zewnętrznej i grubości ścianki, bardzo ważnym parametrem jest współczynnik SDR (Standard Dimension Ratio). Jest to wskaźnik, który mówi nam o stosunku średnicy zewnętrznej rury do grubości jej ścianki. Oblicza się go, dzieląc średnicę zewnętrzną przez grubość ścianki (SDR = d / t). Im wyższy współczynnik SDR, tym cieńsza ścianka w stosunku do średnicy, a co za tym idzie mniejsza odporność na ciśnienie. I odwrotnie, niższy SDR oznacza grubszą ściankę i większą wytrzymałość.
SDR jest kluczowy jako wskaźnik klasy ciśnieniowej i wytrzymałości rury. Dzięki niemu wiesz, czy dana rura nadaje się do instalacji wodociągowej o wysokim ciśnieniu, czy raczej do kanalizacji, gdzie ciśnienie jest niskie. Zawsze zwracaj uwagę na ten parametr, aby uniknąć problemów z pękającymi rurami czy nieszczelnościami.
Gdzie szukać oznaczeń i jak je prawidłowo odczytać bezpośrednio z rury?
Oznaczenia na rurach zazwyczaj znajdują się w formie nadruków, wytłoczeń lub etykiet. Najczęściej są one powtarzane w regularnych odstępach wzdłuż całej długości rury. Szukaj ich na zewnętrznej powierzchni. Czasami, zwłaszcza na starszych rurach lub tych, które były eksploatowane w trudnych warunkach, oznaczenia mogą być zatarte lub niekompletne. W takiej sytuacji warto poszukać fragmentu, który jest najlepiej zachowany. Jeśli to możliwe, sprawdź również dokumentację techniczną lub opakowanie rury. Pamiętaj, że dokładne odczytanie wszystkich symboli jest kluczowe do prawidłowej identyfikacji.

Praktyczny poradnik mierzenia rur krok po kroku
Nawet najlepsza wiedza teoretyczna nie zastąpi umiejętności praktycznego pomiaru. Czasem oznaczenia są nieczytelne, a czasem po prostu potrzebujesz potwierdzić wymiar. Precyzja w tym zakresie to podstawa.
Jak precyzyjnie zmierzyć średnicę zewnętrzną rury za pomocą suwmiarki?
Suwmiarka to Twój najlepszy przyjaciel, jeśli chodzi o precyzyjny pomiar średnicy zewnętrznej rury. Oto jak to zrobić krok po kroku:
- Przygotuj rurę: Upewnij się, że mierzony fragment jest czysty i wolny od zanieczyszczeń, rdzy czy uszkodzeń, które mogłyby zafałszować pomiar. Idealnie, jeśli rura jest okrągła i nieściśnięta.
- Otwórz szczęki suwmiarki: Rozsuń szczęki suwmiarki na tyle, aby rura swobodnie się między nimi zmieściła.
- Umieść rurę: Obejmij rurę szczękami suwmiarki, starając się umieścić ją w ich najgłębszej części, prostopadle do osi rury.
- Zaciśnij szczęki: Delikatnie, ale stanowczo zaciśnij szczęki suwmiarki na rurze. Nie używaj nadmiernej siły, aby nie zdeformować rury (zwłaszcza z tworzyw sztucznych) ani nie uszkodzić narzędzia.
- Odczytaj wynik: Odczytaj wartość ze skali suwmiarki. Pamiętaj o precyzji w przypadku suwmiarek analogowych, zwróć uwagę na podziałkę noniusza. Jeśli masz suwmiarkę cyfrową, odczyt jest prostszy.
- Powtórz pomiar: Dla pewności wykonaj kilka pomiarów w różnych miejscach na obwodzie rury i wzdłuż jej długości. Pomoże to wyeliminować ewentualne niedokładności wynikające z owalizacji rury czy nierówności.
Nie masz suwmiarki? Proste i skuteczne domowe sposoby na pomiar rury
Co zrobić, gdy nie masz pod ręką suwmiarki, a potrzebujesz szybko zmierzyć rurę? Istnieją domowe sposoby, choć pamiętaj, że ich precyzja będzie niższa. Jednym z nich jest metoda z nitką i linijką:
- Owiń rurę nitką: Owiń nitkę (lub cienki sznurek) dokładnie jeden raz wokół rury, tak aby ściśle przylegała.
- Zaznacz obwód: Zaznacz na nitce miejsce, w którym się styka lub krzyżuje.
- Zmierz długość nitki: Rozwiń nitkę i zmierz jej długość za pomocą linijki. Otrzymasz w ten sposób obwód rury (C).
- Oblicz średnicę: Skorzystaj ze wzoru na obwód okręgu: C = π * d, gdzie d to średnica. Zatem d = C / π. Przyjmij π ≈ 3.14.
Inną metodą jest porównywanie z innymi elementami, np. kluczami płaskimi, otworami w płytkach, czy innymi rurami, których wymiary znasz. To metoda "na oko", ale w awaryjnych sytuacjach może dać wystarczające przybliżenie.
Jak wykorzystać tabele wymiarów do identyfikacji rury bez mierzenia?
Jeśli masz do czynienia z rurą, której oznaczenia są czytelne, ale nie masz pewności co do ich interpretacji, lub gdy chcesz zweryfikować pomiar, tabele wymiarów są nieocenionym narzędziem. W internecie, w katalogach producentów, a także w normach technicznych, znajdziesz szczegółowe tabele dla różnych typów rur (stalowych, miedzianych, z tworzyw sztucznych) i różnych norm.
Aby z nich skorzystać, musisz znać materiał rury oraz przynajmniej jedno oznaczenie (np. DN, calowe, czy przybliżoną średnicę zewnętrzną). Wyszukaj odpowiednią tabelę, a następnie odnajdź w niej swoje oznaczenie. Tabela poda Ci wszystkie kluczowe wymiary, takie jak średnica zewnętrzna, średnica wewnętrzna i grubość ścianki. To pozwala na precyzyjną identyfikację rury bez konieczności mierzenia, co jest szczególnie przydatne przy planowaniu zakupów.
Najczęstsze błędy i pułapki na co uważać przy doborze rur i złączek?
Moja praktyka pokazuje, że nawet doświadczonym instalatorom zdarzają się błędy. Znając najczęstsze pułapki, możesz ich skutecznie unikać, oszczędzając sobie frustracji i niepotrzebnych wydatków.
Błąd nr 1: Mylenie średnicy nominalnej (DN) z zewnętrzną (d) jak go uniknąć?
To jest chyba najczęstszy i najbardziej kosztowny błąd, o którym już wspominałem. Ktoś widzi rurę DN25 i automatycznie zakłada, że jej średnica zewnętrzna to 25 mm, po czym kupuje złączkę na 25 mm. Efekt? Złączka nie pasuje, bo rzeczywista średnica zewnętrzna rury DN25 to 33,7 mm. Konsekwencje to niedopasowane złączki, nieszczelności, a w najlepszym wypadku zmarnowany czas na wymianę materiałów.
Jak tego uniknąć? Moja rada jest prosta: zawsze, ale to zawsze, sprawdzaj rzeczywistą średnicę zewnętrzną (d) rury, zwłaszcza przy zakupie złączek. Jeśli masz wątpliwości, zmierz rurę suwmiarką lub skorzystaj z tabel przeliczeniowych, które jasno określają, jaka średnica zewnętrzna odpowiada danej średnicy nominalnej. Pamiętaj, że DN to umowne oznaczenie, a d to fizyczny wymiar, który musisz dopasować.
Błąd nr 2: Ignorowanie grubości ścianki przy doborze złączek do spawania i zgrzewania
Grubość ścianki to parametr, który często bywa niedoceniany, a ma krytyczne znaczenie, zwłaszcza przy łączeniu rur metodami takimi jak spawanie czy zgrzewanie. Jeśli dobierzesz złączkę o niewłaściwej grubości ścianki do rury, połączenie może być słabe, nieszczelne, a nawet pęknąć pod wpływem ciśnienia lub naprężeń. Na przykład, rura o cienkiej ściance połączona ze złączką o grubej ściance może prowadzić do nieprawidłowego przetopu podczas spawania, co skutkuje wadliwym połączeniem.
Zawsze upewnij się, że grubość ścianki rury i złączki jest kompatybilna, szczególnie gdy pracujesz z rurami stalowymi i oznaczeniami Schedule. To zapewni trwałość i bezpieczeństwo całej instalacji. Nie warto oszczędzać na tym aspekcie.
Błąd nr 3: Niewłaściwe przeliczanie cali na milimetry przy zakupach
Ten błąd jest ściśle związany z pierwszym, ale dotyczy specyfiki systemu calowego. Wielu ludzi, słysząc "pół cala", automatycznie przelicza to na 12,7 mm. Jak już wiemy, w hydraulice rura 1/2 cala ma średnicę zewnętrzną 21,3 mm. Kupując złączki, które są oznaczone w milimetrach, a rura jest w calach, łatwo o pomyłkę.
Aby tego uniknąć, zawsze miej pod ręką tabelę konwersji lub, co jeszcze lepsze, pytaj sprzedawcę o rzeczywiste wymiary zewnętrzne w milimetrach, jeśli kupujesz złączki do rur oznaczonych calowo. Lepiej dopytać raz, niż wracać do sklepu po raz drugi z powodu niedopasowania.
Od teorii do praktyki: dobór rur w domowych instalacjach
Teraz, gdy masz już solidne podstawy teoretyczne i wiesz, jak unikać typowych błędów, przejdźmy do konkretów. Jak tę wiedzę zastosować w praktyce, w typowych instalacjach domowych?
Jakie średnice rur (DN15, DN20, DN25) wybrać do łazienki, kuchni i ogrzewania?
Dobór odpowiedniej średnicy rur do konkretnych zastosowań jest kluczowy dla efektywności i komfortu użytkowania instalacji. Oto moje rekomendacje oparte na doświadczeniu:
- Łazienka i kuchnia (podłączenia baterii, spłuczki): Najczęściej stosuje się rury o średnicy 1/2 cala (DN15). To wystarczająca średnica do zasilania pojedynczych punktów poboru wody, takich jak baterie umywalkowe, zlewozmywakowe czy spłuczki WC.
- Baterie wannowe, prysznicowe, główne gałązki: W tych miejscach, gdzie zapotrzebowanie na wodę jest większe, a także na głównych gałązkach rozprowadzających wodę do kilku punktów, często stosuje się rury 3/4 cala (DN20). Zapewnia to odpowiednie ciśnienie i przepływ.
- Piony wodociągowe, główne zasilanie domu, instalacje grzewcze: Jako piony doprowadzające wodę do poszczególnych kondygnacji lub do głównego rozdzielacza w domu, a także w instalacjach centralnego ogrzewania, zazwyczaj stosuje się rury 1 cal (DN25) lub 5/4 cala (DN32). Wybór zależy od wielkości instalacji i przewidywanego zapotrzebowania na wodę/moc grzewczą. Zbyt mała średnica pionu może skutkować spadkami ciśnienia w całej instalacji.
Pamiętaj, że te wartości są orientacyjne i zawsze warto skonsultować się z projektem instalacji lub doświadczonym instalatorem, aby dobrać optymalne średnice dla Twojego konkretnego przypadku.
Przeczytaj również: Podłącz siłownik do zaworu 4D: Poradnik i sekrety kalibracji
Łączenie rur o różnych systemach wymiarowania (np. stal z PEX) jak to zrobić poprawnie?
W nowoczesnych instalacjach często spotykamy się z koniecznością łączenia rur wykonanych z różnych materiałów i o różnych systemach wymiarowania. Przykładowo, stara instalacja stalowa może być rozbudowywana o nowe odcinki z rur PEX. Kluczem do sukcesu jest tu stosowanie odpowiednich złączek przejściowych i adapterów.
Na rynku dostępne są specjalistyczne złączki, które umożliwiają połączenie rury stalowej z gwintem (np. 1/2 cala) z rurą PEX o określonej średnicy zewnętrznej (np. 16 mm czy 20 mm). Takie złączki mają zazwyczaj z jednej strony gwint (zewnętrzny lub wewnętrzny), a z drugiej system do połączenia z rurą PEX (np. zaciskowy lub skręcany). Zawsze upewnij się, że złączka jest przeznaczona do łączenia konkretnych materiałów i rozmiarów, które chcesz ze sobą połączyć. Nie próbuj "dopasowywać" na siłę, bo to prosta droga do nieszczelności i awarii. Wybieraj produkty renomowanych producentów, które gwarantują szczelność i trwałość połączenia.
